森のこみちを通って。新築デザイナーズテラスハウス(井戸付き)
僕が毎日自転車で通る通勤路、以前からあった団地がなにやらオシャレな建物に。
緑が多くて贅沢な造りだなと思っていたら、全室メゾネットタイプの賃貸物件でした。
設計は、これまで多くの賞を獲っている成瀬・猪熊設計事務所。
最近は「デザイナーズっぽい」物件が多いですが、正真正銘のデザイナーズです。
名前は「西荻こみちテラス」。
https://www.m-cd.co.jp/sumai/chintai/nishiogi/
その名の通り、建物の間を通る緑の小径が印象的。
植栽が豊かで、気持ちがいい風が抜けてきそう。
小径の途中には、井戸とベンチがあり、自然と住人同士のコミュニケーションの場になりそうです。
文字通り、井戸端会議が毎日開催されるのではないでしょうか。
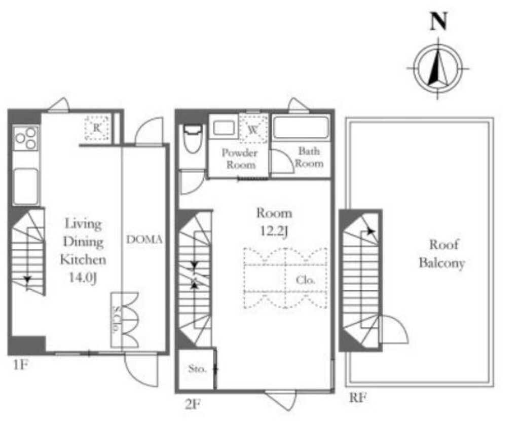
コンクリートとフローリングのシンプルな内装。
安心感があります。
嬉しいのがどの部屋も広いルーフバルコニーがあること。
季節が良ければ、ここで本を読んだり作業をしたりできそうです。
お部屋によっては、土間があったり、可動式クローゼットがあったりと、
暮らしにあうようにアレンジできます。
閑静な住宅街の真ん中にあり、静かに暮らすにはピッタリな立地。
図書館がすぐ近くなのもいいですね。
内見の申込・問い合わせ
暮らしのいろいろ ていねいに、
03-3331-5750
teineini.nishiogi@gmail.com
担当 福田
※HPには特徴のあるお部屋をご紹介しています。
これ以外にもその方のご要望に合わせたお部屋をご紹介します。
お気軽にご相談ください。

| 物件名 | 西荻こみちテラス |
|---|---|
| 賃料 | 262000円〜298000円 |
| 管理費 | 15000円 |
| 敷金 | 2ヶ月(ペット飼育時+1ヶ月) |
| 礼金 | 1ヶ月 |
| 専有面積 | 60.10〜67.12㎡ |
| 所在地 | 西荻北2丁目 |
| 交通 | JR中央・総武線西荻窪駅徒歩9分 |
| 築年 | 2025年 |
| 設備 | 【占有部】ルーフバルコニー、インターネット無料、オールステンレス製システムキッチン、グリル付き3口IHコン口、エアコン、クローゼット、シューズクローゼット、独立洗面台、追焚機能、浴室乾燥、室内洗濯機置場、ウォシュレット、ダブルロックキー、ディンプルキー、モニター付インターフォン 【共有部】井戸端カウンター(屋根、ベンチ)、防犯カメラ、各戸宅配ボックス、敷地内ゴミ置き場、防災倉庫、防災井戸、駐輪場(月300〜500円) |
| 備考 | RC造2階建(メゾネット)、火災保険必須、保証会社必須、退去時クリーニング代借主負担、ペット可能(小型犬1匹or猫2匹)、ペット飼育時敷金+1ヶ月(償却)、仲介手数料1ヶ月(税) 取引態様:媒介 情報更新日:1月12日 |
※掲載の情報が現状と異なる場合には、現状を優先するものとします。